简单,是终极的复杂。
Simplicity is the ultimate sophistication.
——达芬奇

继空巢青年、佛系、隐性贫困人口……
这些标签之后,新青年当中刮起新潮流:
极简主义青年= =
在他们眼里,
穿衣只选剪裁得体有质感的衣服,
吃饭时全部心思全用在菜品的味道上,
理发无需托尼老师花式点评,
只选活好话少的。
面对日益高涨的房租房价,
极简主义青年在家居空间中,
更是本着一切从简,崇尚自由的思想,
旋即卡诺亚极简生活系列也被众人拥趸~
今天小卡分享一套极简风家居装修案例,
给空间做减法,让家居承载丰满的“空”
营造轻盈的生活,呼吸自由的空气~
Come on,一起做一枚极简青年
☟☟☟
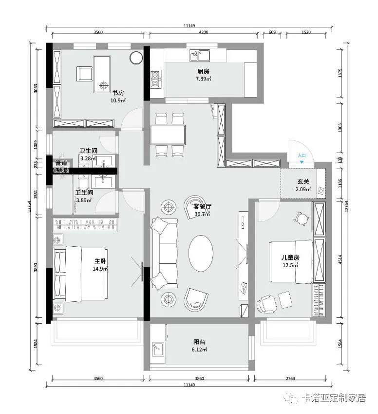
{户型图}
01门厅
银丝木贴皮搭配LCT高亮光门板
显示出别样的尊奢
独特的线条工艺增加了挺括的肌理感
使得空间具有超凡的气质
设置一个到顶的玄关柜
中部放置一面镜子,出入整理着装仪容便捷
左边封闭式收纳柜与右边开放格相结合
一藏一展,动静皆宜
02餐厅
餐厅是质感的纯白,符合极简的设计理念
为喧嚣的都市减压,心情也变得轻舞飞扬 
餐边柜与酒柜二合一,收纳功能强大
嵌入式冰箱,更省空间、整体更统一
餐厅介于门厅、厨房之间
与厨房采用玻璃推拉门相隔
可随时与下厨的人互动
客厅的主体基调为银丝贴木
低调中暗藏光华
不经意间流露出主人的优雅品味 

灵动造型的艺术吊灯
打破简约线条的单一感
呈现个性的美感
光影流动彰显空间层次感
柔和温暖的布艺沙发融化简约的硬朗
高冷厨房彰显高逼格气场
银丝木搭配高亮光LCT珍珠白门板,
让厨房变成一个洁白的艺术空间
生活的高光点亮厨房的色香味 
05主卧
主卧以白色为主色调,深色为辅助色
加入灰色系的银丝木
打造出品质高雅的极简风格
到顶衣柜设置了玻璃柜门
空间通透更显大 

寝具为纯洁的白色,深色边框修饰
看起来干净舒适又耐品
奔波了一天的疲惫身躯
可以在这里得到温柔的治愈 
06儿童房
儿童房有别于主卧的沉稳与冷静
设计师有意用跳跃的橘黄色提升空间的活力
在与灰白的碰撞中绽放空间的创意
释放孩子无穷的想象力
衣柜、书柜、书桌一体化
嵌入式床头,不浪费一寸空间
靠墙定制一整排柜子
但并非单一的全封闭柜子
开放与封闭兼有,视觉立体不显压抑
让空间即不缺失功能性
又充满装饰的趣味
07书房
每个家都需要一个极致书房
在一个属于自我的空间里
阅一本喜爱的书籍,品一杯香浓的咖啡
此情此景何等惬意 
小时候快乐很简单,长大了简单即快乐
让人静心的慕尼黑及银丝木花色
通透醒神的LCT珍珠白搭配玻璃门
简单的色彩搭配,去繁化简,减掉赘饰
让你在繁复的工作之后
找到一个“减压”的书房